[prev][index][next] [index to photographs]

GA-DNR Notice of 2016-08-03 Intent (2 of 6)

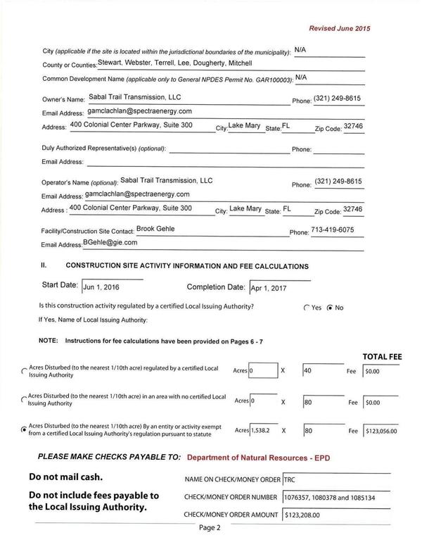
Notice by GA-DNR 2016-08-03
Stewart Co. and Hog Creek, Colquitt Co. GA Variances
17 October 2016
Sabal Trail Transmission jsq at quarterman.org
 
GA-DNR Notice of 2016-08-03 Intent (2 of 6)
bigger

Last changed: $Date: 2016/10/18 20:09:23 $