[prev][index][next] [index to photographs]

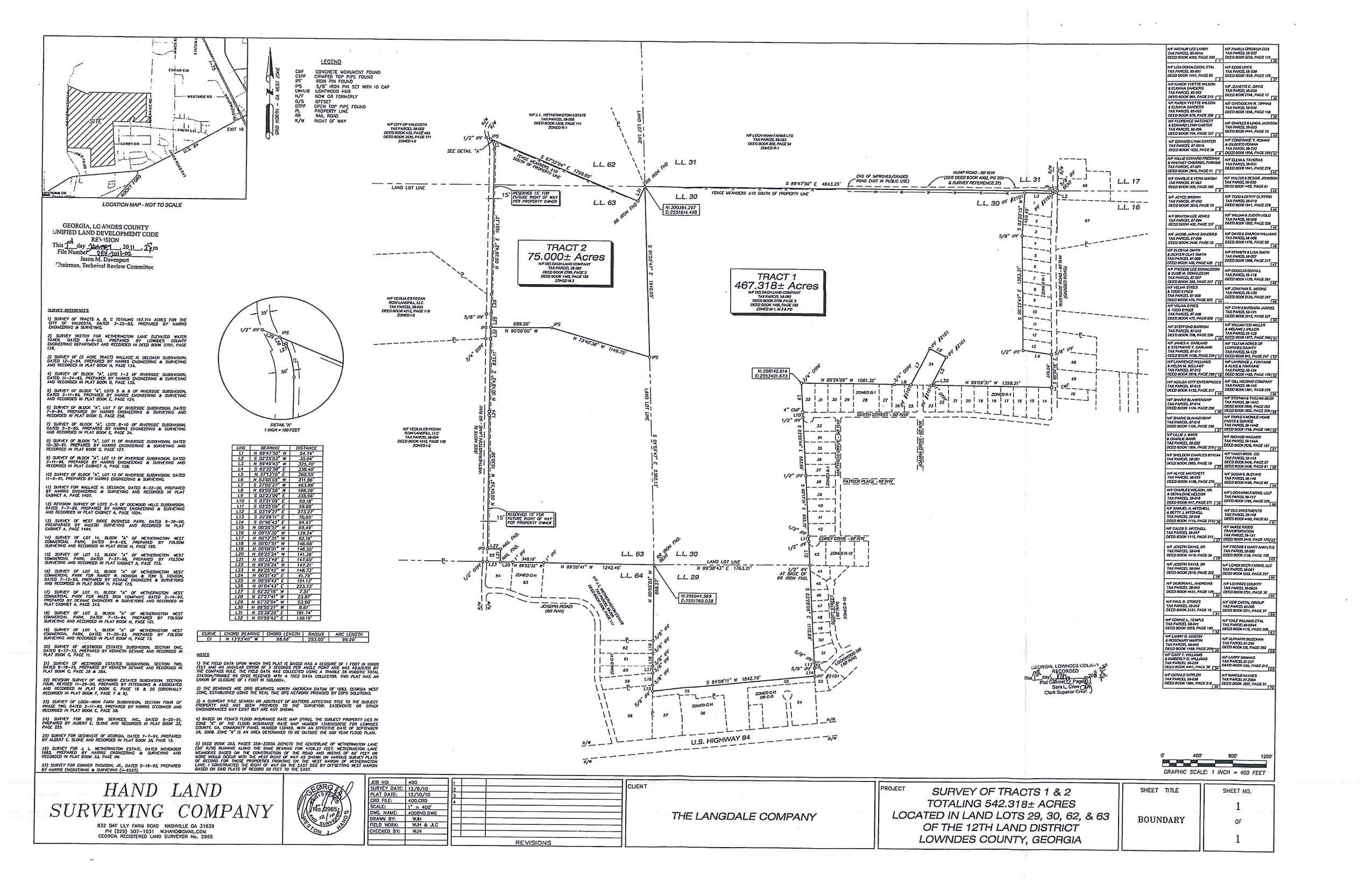
Survey Plat

More REZ-2015-20 Maps
Withlacoochee River Wastewater Treatment Plant packet materials @ GLPC 2015-11-30
30 November 2015
Jason Davenport jsq at quarterman.org
 
Survey Plat
smaller

Last changed: $Date: 2015/12/07 13:37:50 $