Lowndes Area Knowledge Exchange (LAKE)
by Chris Connell, Executor of Estate
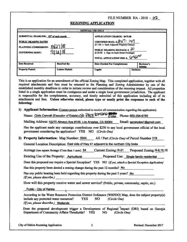
Rezoning Application HA-2018-02
Hahira annexation
1 August 2018
bigger
PDF
Photographs
by
Lowndes Area Knowledge Exchange (LAKE)
,
licensed by a
Creative Commons Attribution-Share Alike 3.0 U.S. License
.
Lowndes Area Knowledge Exchange (LAKE)