Lowndes Area Knowledge Exchange (LAKE)
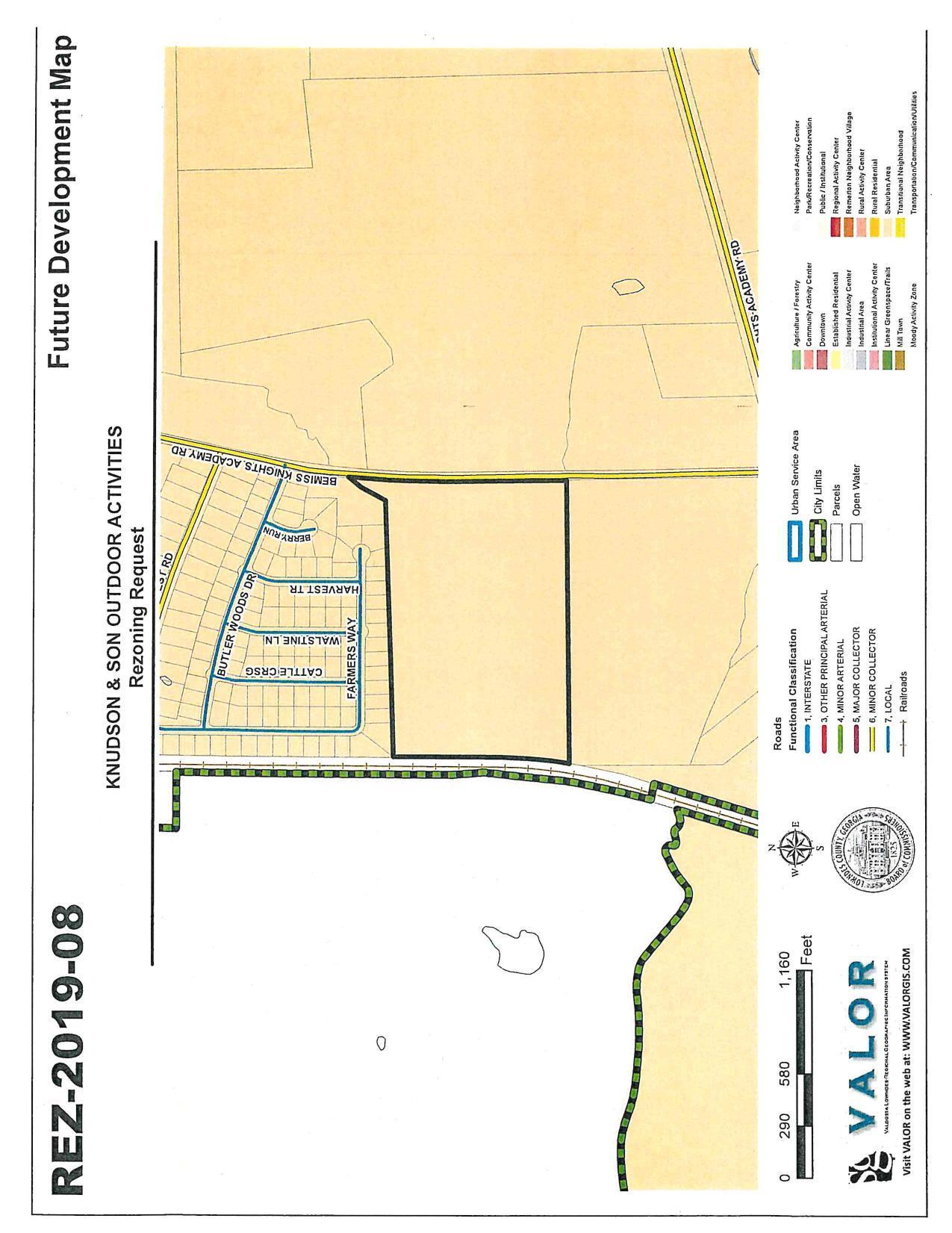
Future Development Map
REZ-2019-08 Knudson & Son Outdoor Activities
Packet: Lowndes County Commission @ LCC
10 June 2019
smaller
PDF
Photographs
by
Lowndes Area Knowledge Exchange (LAKE)
,
licensed by a
Creative Commons Attribution-Share Alike 3.0 U.S. License
.
Lowndes Area Knowledge Exchange (LAKE)