Lowndes Area Knowledge Exchange (LAKE)
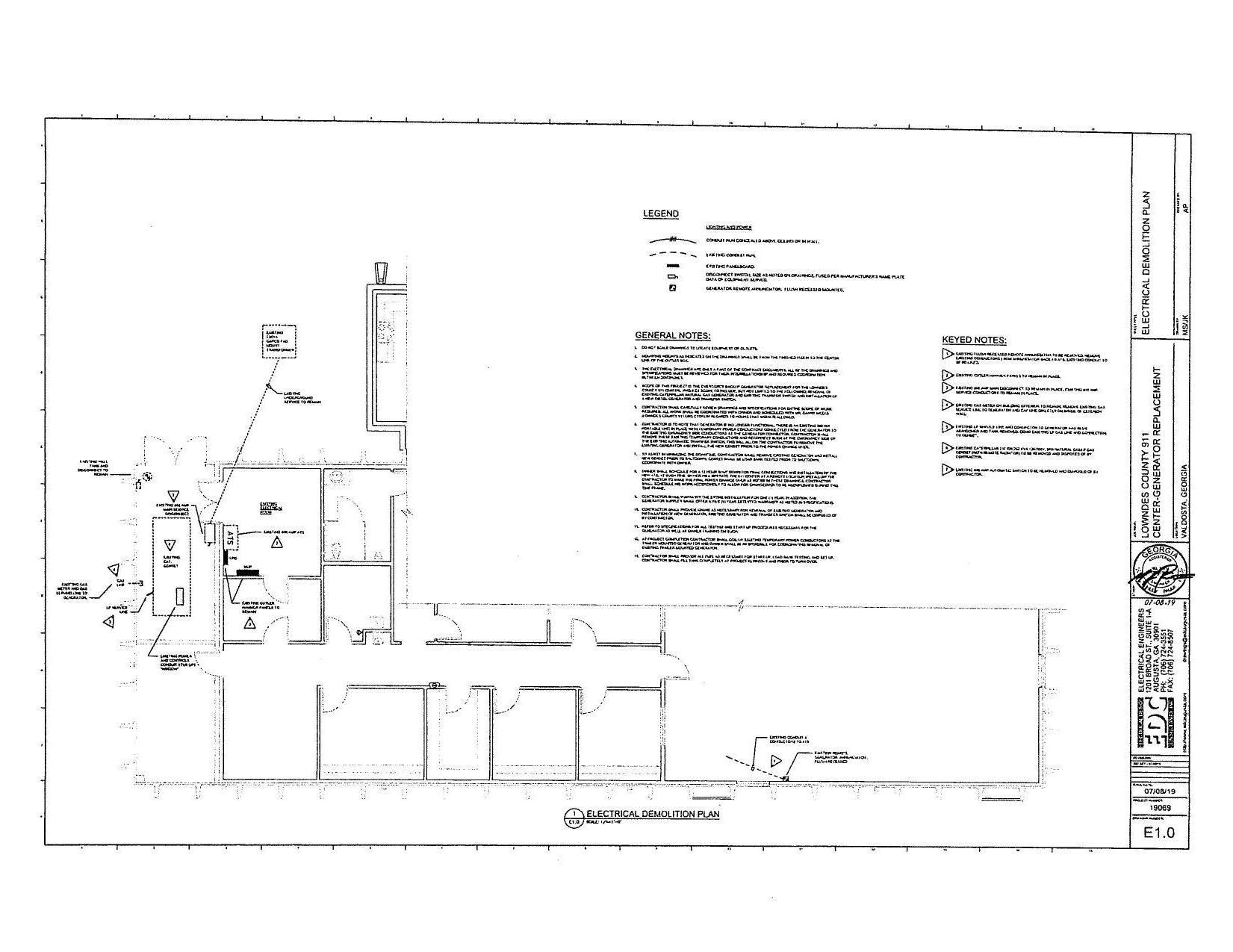
Electrical Demolition Plan
Bids for a New Generator for 911 Work Session/Regular Session DATE OF MEETING: November 12, 2019
Grants and bids, Law, Transportation, Water, and Roof Cleaning @ LCC
11 November 2019
smaller
PDF
Photographs
by
Lowndes Area Knowledge Exchange (LAKE)
,
licensed by a
Creative Commons Attribution-Share Alike 3.0 U.S. License
.
Lowndes Area Knowledge Exchange (LAKE)