Lowndes Area Knowledge Exchange (LAKE)
and the total number of outfalls on the MS4 in
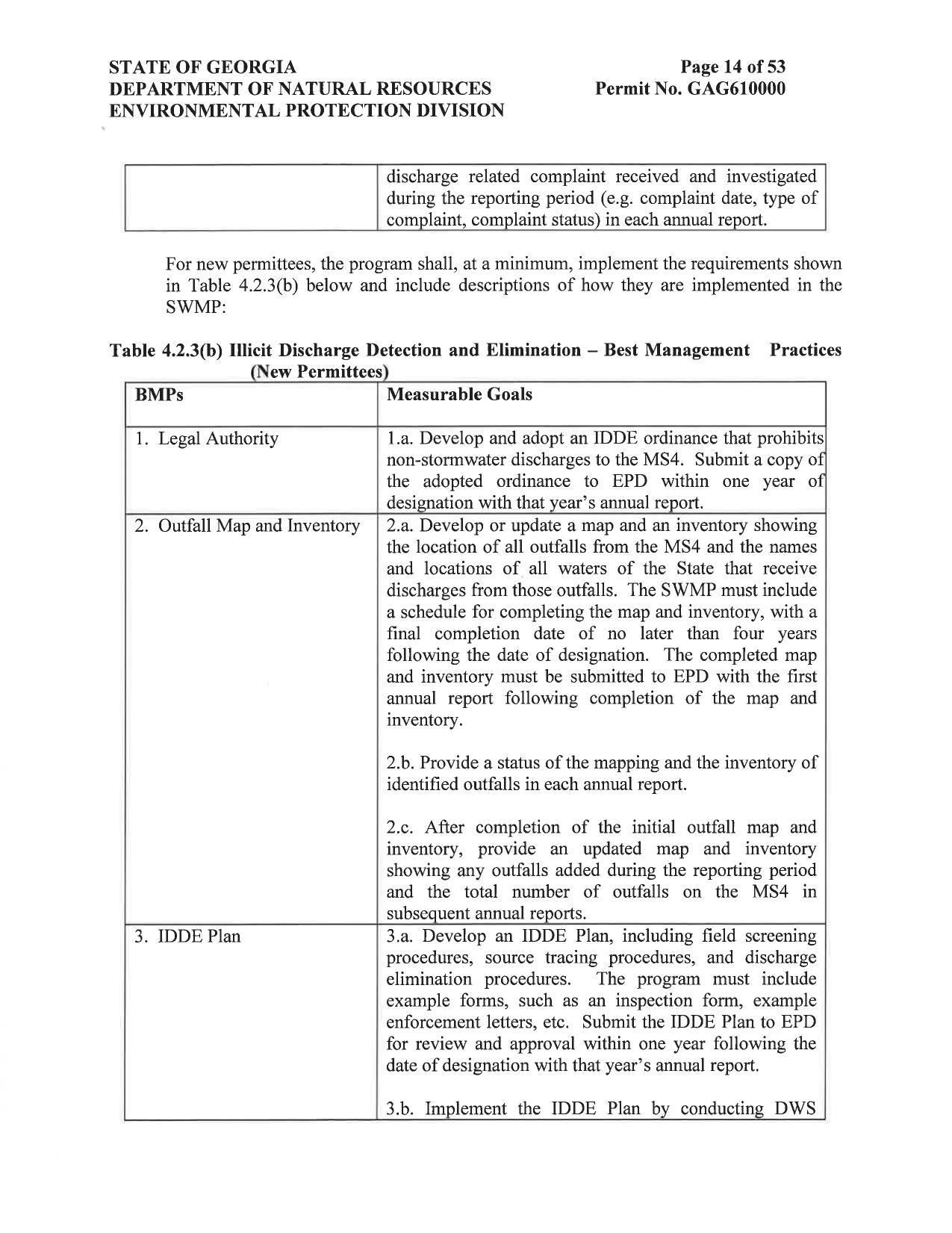
PART 4. STORMWATER MANAGEMENT PROGRAM
Lowndes County, GA, Stream Monitoring and Stormwater Permit
28 April 2020
smaller
PDF
Photographs
by
Lowndes Area Knowledge Exchange (LAKE)
,
licensed by a
Creative Commons Attribution-Share Alike 3.0 U.S. License
.
Lowndes Area Knowledge Exchange (LAKE)