Lowndes Area Knowledge Exchange (LAKE)
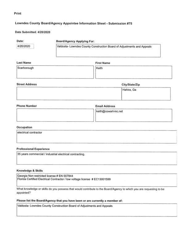
Keith Scarborough
Valdosta-Lowndes County Construction Board of Adjustments and Appeals
Budget, Bevel Creek Lift Station, Val Tech Road widening, Appointments: ZBOA, Library, VLPRA, Construction @ LCC
22 June 2020
bigger
PDF
Photographs
by
Lowndes Area Knowledge Exchange (LAKE)
,
licensed by a
Creative Commons Attribution-Share Alike 3.0 U.S. License
.
Lowndes Area Knowledge Exchange (LAKE)