Lowndes Area Knowledge Exchange (LAKE)
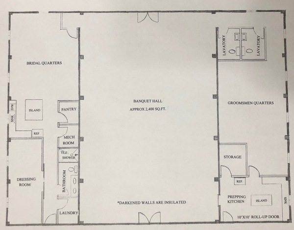
Proposed interior sketch
REZ-2020-11 Bella Mill Plantation, 8450 Ousley Rd., 0017 096, 15.8 ac., EA to PD, well/septic
Reappointment to GLPC, three rezonings w. Tiger Creek, whose communications tower? @ LCC
7 September 2020
bigger
Photographs
by
Lowndes Area Knowledge Exchange (LAKE)
,
licensed by a
Creative Commons Attribution-Share Alike 3.0 U.S. License
.
Lowndes Area Knowledge Exchange (LAKE)