Lowndes Area Knowledge Exchange (LAKE)

[prev][index][next] [index to photographs]

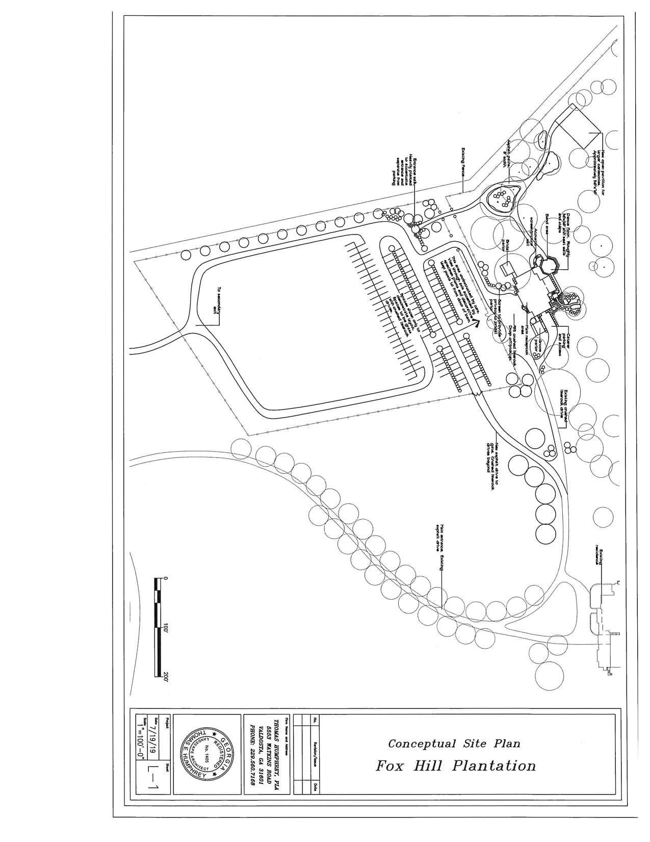
Conceptual Site Plan: Fox Hill Plantation

REZ-2020-14 Fox Hill Plantation 8163 Miller Road (0010 004) E- Ato PD-R, Well and Septic, ~11.1 acres
Packet: Lift Station Pump, Juvenile Justice Grant, Fees for Web and Telephone Payments, 3 rezonings, 1 withdrawn, 1 lighting, beer @ LCC
12 October 2020

 
Conceptual Site Plan: Fox Hill Plantation
smaller PDF