Lowndes Area Knowledge Exchange (LAKE)
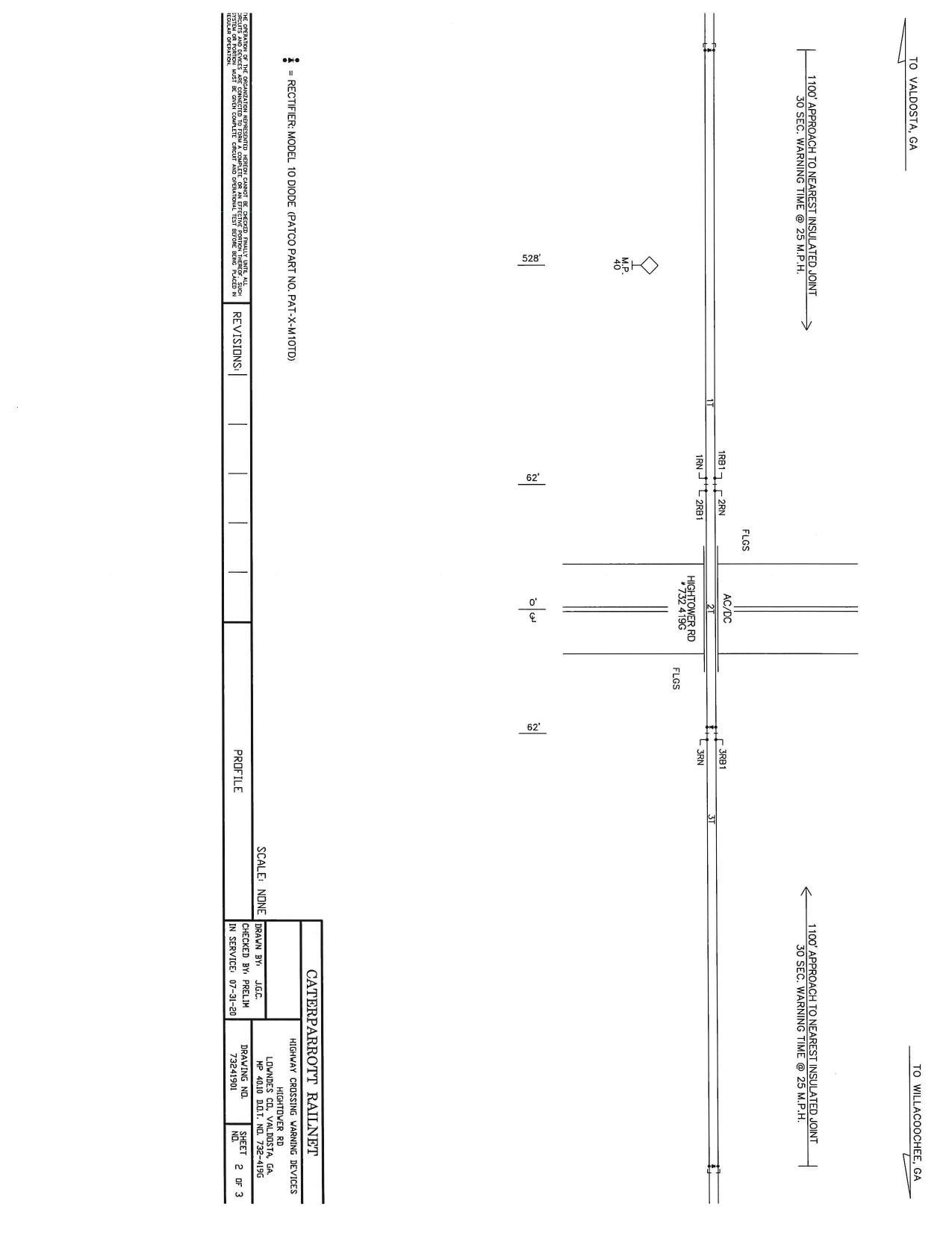
Plat: 1000 foot approach, Highway Crossing Warning Devices
Approval of Railroad Agreement for Hightower Road Project
COVID-19, Ballyntyne Subdivision, County expenses for Hightower Road, Sewer, Moody AFB, Fire Pumper @ LCC
11 January 2021
smaller
PDF
Photographs
by
Lowndes Area Knowledge Exchange (LAKE)
,
licensed by a
Creative Commons Attribution-Share Alike 3.0 U.S. License
.
Lowndes Area Knowledge Exchange (LAKE)