Lowndes Area Knowledge Exchange (LAKE)

[prev][index][next] [index to photographs]

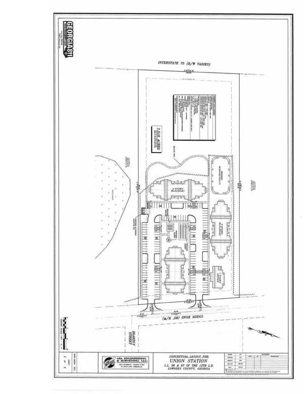
Conceptual Layout

COMMISSION AGENDA ITEM: REZ-2021-04 Union Station Union Road (0028 028A) C-H/C-C to P-D, Hahira Water & Lowndes Sewer, ~7.5 acres
Subdivisions, quit claim, fire tax district & draft pit, Chambers A/V, deannexation, resurfacing, soccer complex, shooting range shelter @ LCC
21 April 2021

 
Conceptual Layout
bigger PDF