Lowndes Area Knowledge Exchange (LAKE)

[prev][index][next] [index to photographs]

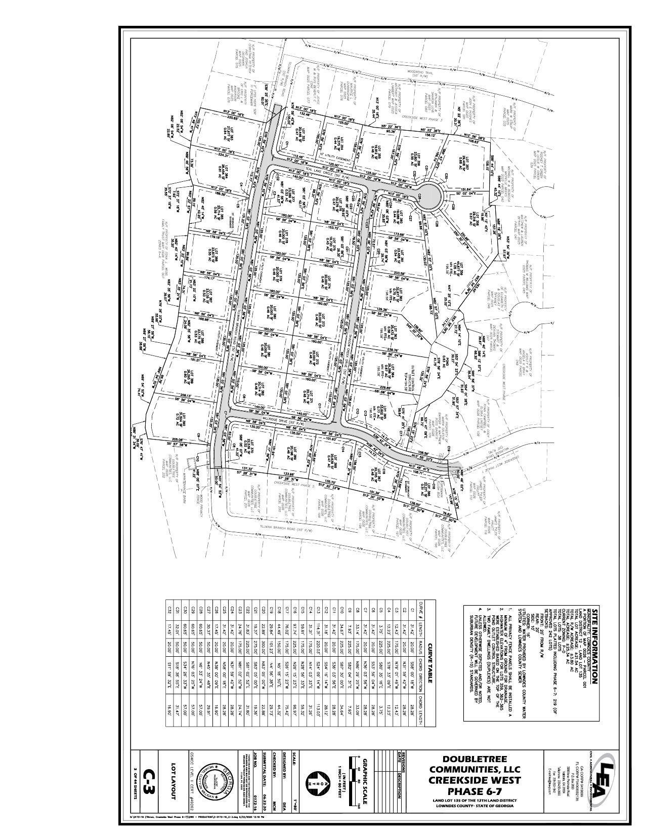
Site plan

COMMISSION AGENDA ITEM: Acceptance of Infrastructure for Creekside West Phase 6 & 7
Subdivisions, quit claim, fire tax district & draft pit, Chambers A/V, deannexation, resurfacing, soccer complex, shooting range shelter @ LCC
21 April 2021

 
Site plan
smaller PDF