Lowndes Area Knowledge Exchange (LAKE)

[prev][index][next] [index to photographs]

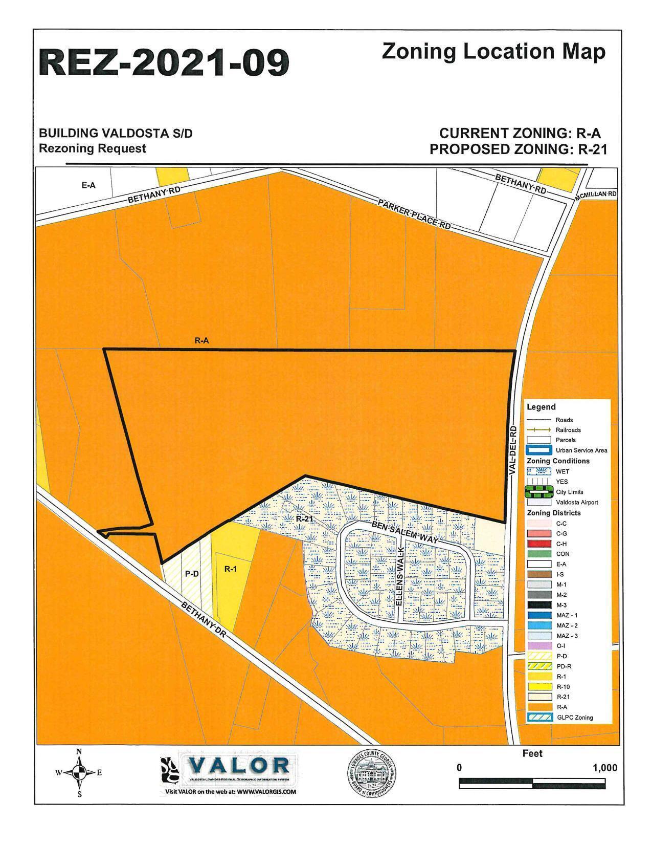
Zoning Location Map

REZ-2021-09 Building Valdosta Subdivision (0070 018), R-A to R- 21, Community Well & Septic, ~64.84 acres
Tourism Authority appointment, 3 rezonings, wetlands, solar, UPS, Lake Alapaha water treatment, body cameras @ LCC
9 August 2021

 
Zoning Location Map
smaller PDF