Lowndes Area Knowledge Exchange (LAKE)
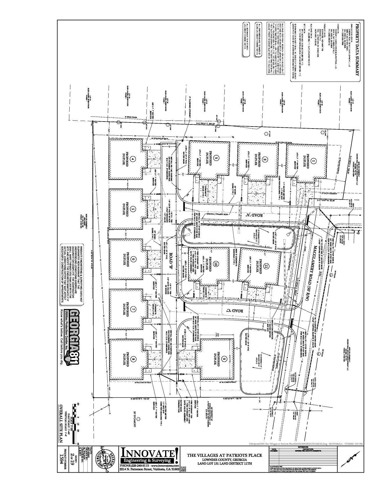
The Villages at Patriots Place, Layout
October-11-12-2021-Meeting-Packet-2
Sewer Improvements, Water for subdivision sprawl, Library @ LCC
11 October 2021
smaller
PDF
Photographs
by
Lowndes Area Knowledge Exchange (LAKE)
,
licensed by a
Creative Commons Attribution-Share Alike 3.0 U.S. License
.
Lowndes Area Knowledge Exchange (LAKE)