Lowndes Area Knowledge Exchange (LAKE)

[prev][index][next] [index to photographs]

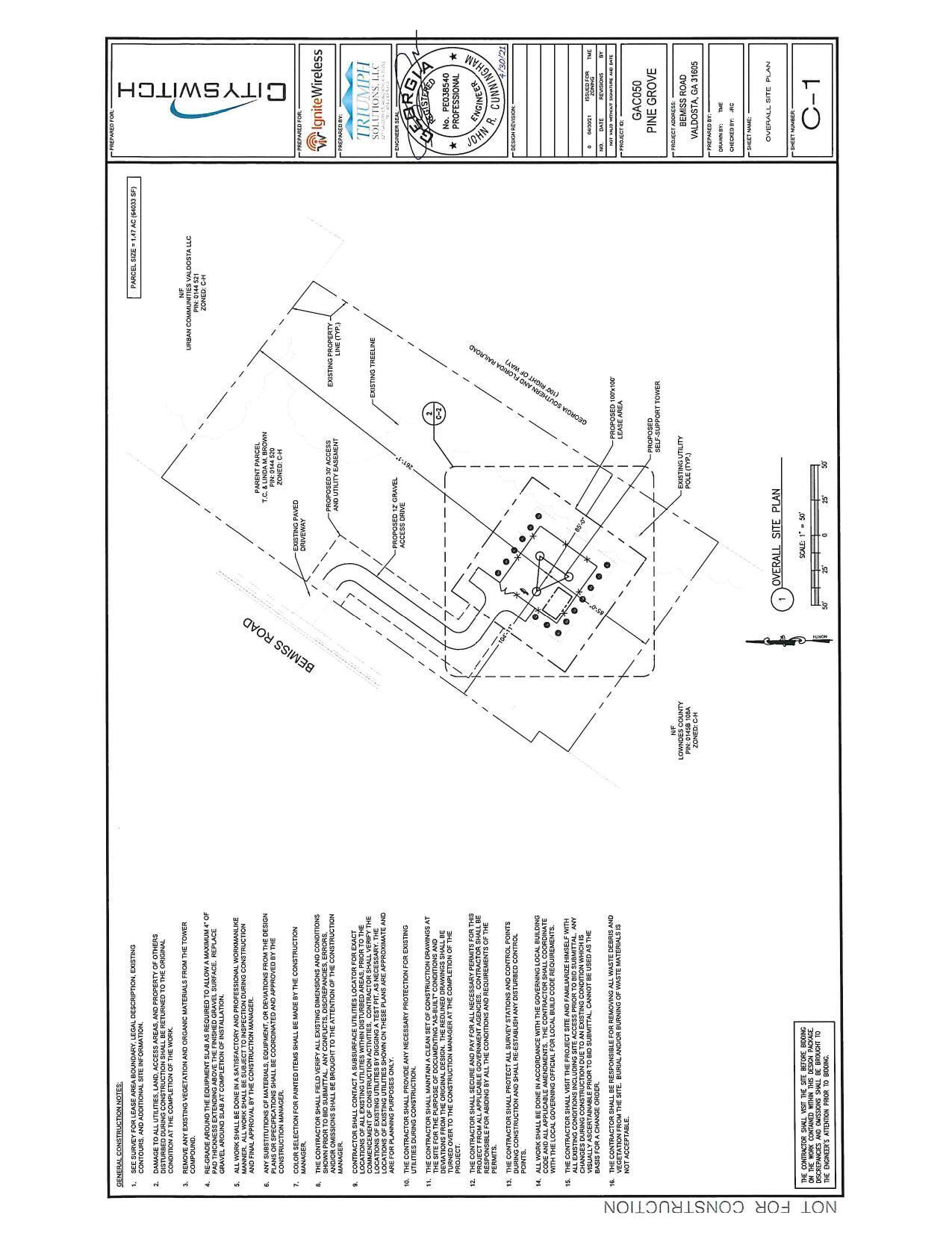
Overall Site Plan

TWR-2021-01 CitySwitch II, LLC, Bemiss Road, New 265' Telecommunications Tower
Comprehensive Plan approval, Hospital Authority re-appointment, 3 small rezonings, AT&T cell tower, Regional Transit, LMIG Restriping, Budget Calendar, Second Harvest, Code Red @ LCC
8 November 2021

 
Overall Site Plan
smaller PDF