Lowndes Area Knowledge Exchange (LAKE)
Future Development Map
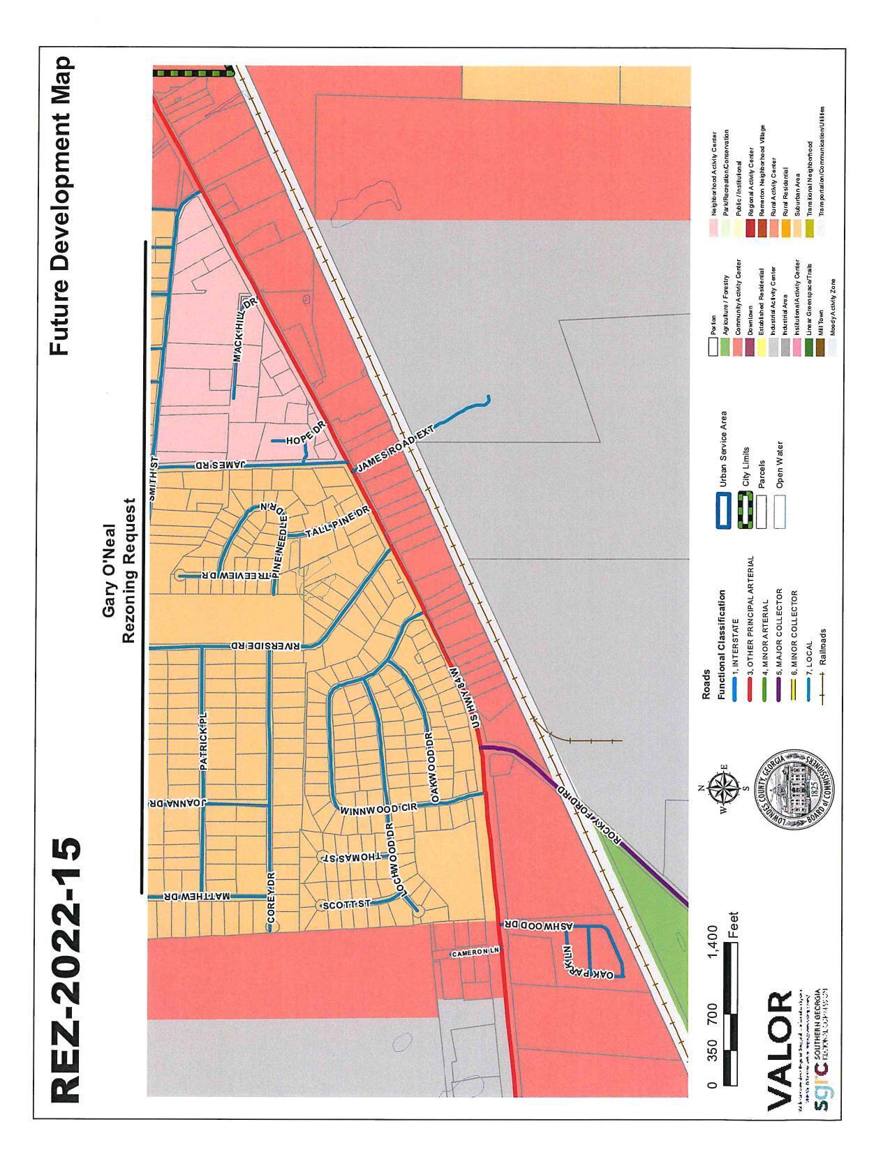
REZ-2022-15 O'Neal Properties, 2547 US HWY 84 West, R-21 to C-H, Well & Septic, 4.53ac
Packet: redo 2 rezonings, 3 extraterritorial water & sewer, $438,537 RR crossing, $2,542,586 Griner Park @ LCC
12 September 2022
smaller
PDF
Photographs
by
Lowndes Area Knowledge Exchange (LAKE)
,
licensed by a
Creative Commons Attribution-Share Alike 3.0 U.S. License
.
Lowndes Area Knowledge Exchange (LAKE)