Lowndes Area Knowledge Exchange (LAKE)
Preliminary Plat
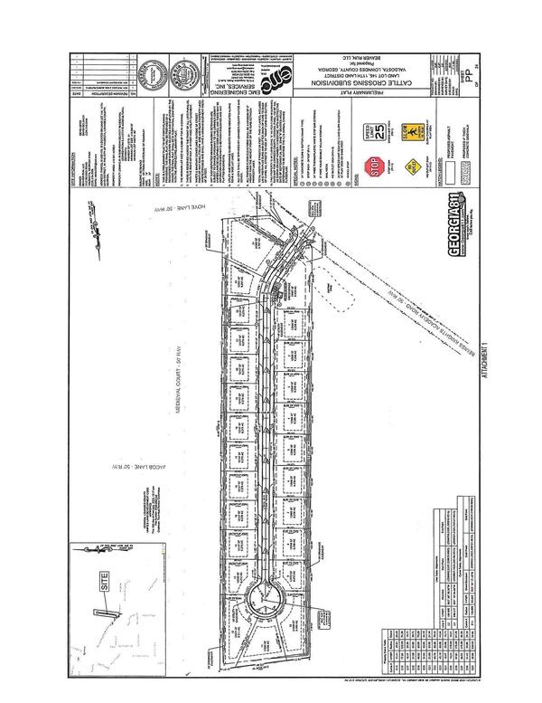
Addition to Basic Decorative Lighting District: Cattle Crossing Subdivision (24 lots)
Packet: Dollar General to be tabled @ LCC
12 December 2022
bigger
PDF
Photographs
by
Lowndes Area Knowledge Exchange (LAKE)
,
licensed by a
Creative Commons Attribution-Share Alike 3.0 U.S. License
.
Lowndes Area Knowledge Exchange (LAKE)