Lowndes Area Knowledge Exchange (LAKE)

[prev][index][next] [index to photographs]

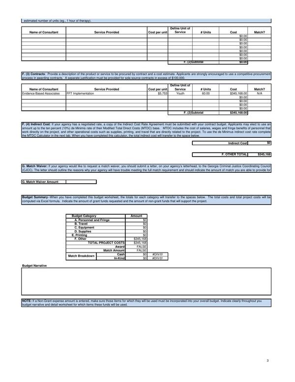
estimated number of units (eg.. 1 hour of therapy).

Acceptance of FY24 Juvenile Justice Incentive Grant Funding
Permitting and Inspections Ordinances and fees, Water main extension, Service contracts, court grants, and a fire truck @ LCC Packet
24 July 2023

 
estimated number of units (eg.. 1 hour of therapy).
bigger PDF