Lowndes Area Knowledge Exchange (LAKE)
Page 28
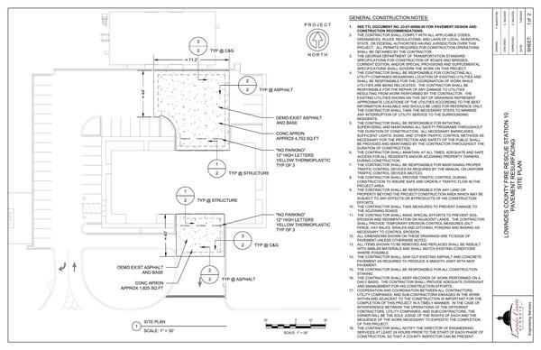
Fire Station 10 Pavement Bid Documents
Agenda: Golf carts, mental health, wetland credits, regional transit, Lift Station and Fire Station Access Roads, 2 TIA Road Bids @ LCC
25 September 2023
bigger
PDF
Photographs
by
Lowndes Area Knowledge Exchange (LAKE)
,
licensed by a
Creative Commons Attribution-Share Alike 3.0 U.S. License
.
Lowndes Area Knowledge Exchange (LAKE)