Lowndes Area Knowledge Exchange (LAKE)

[prev][index][next] [index to photographs]

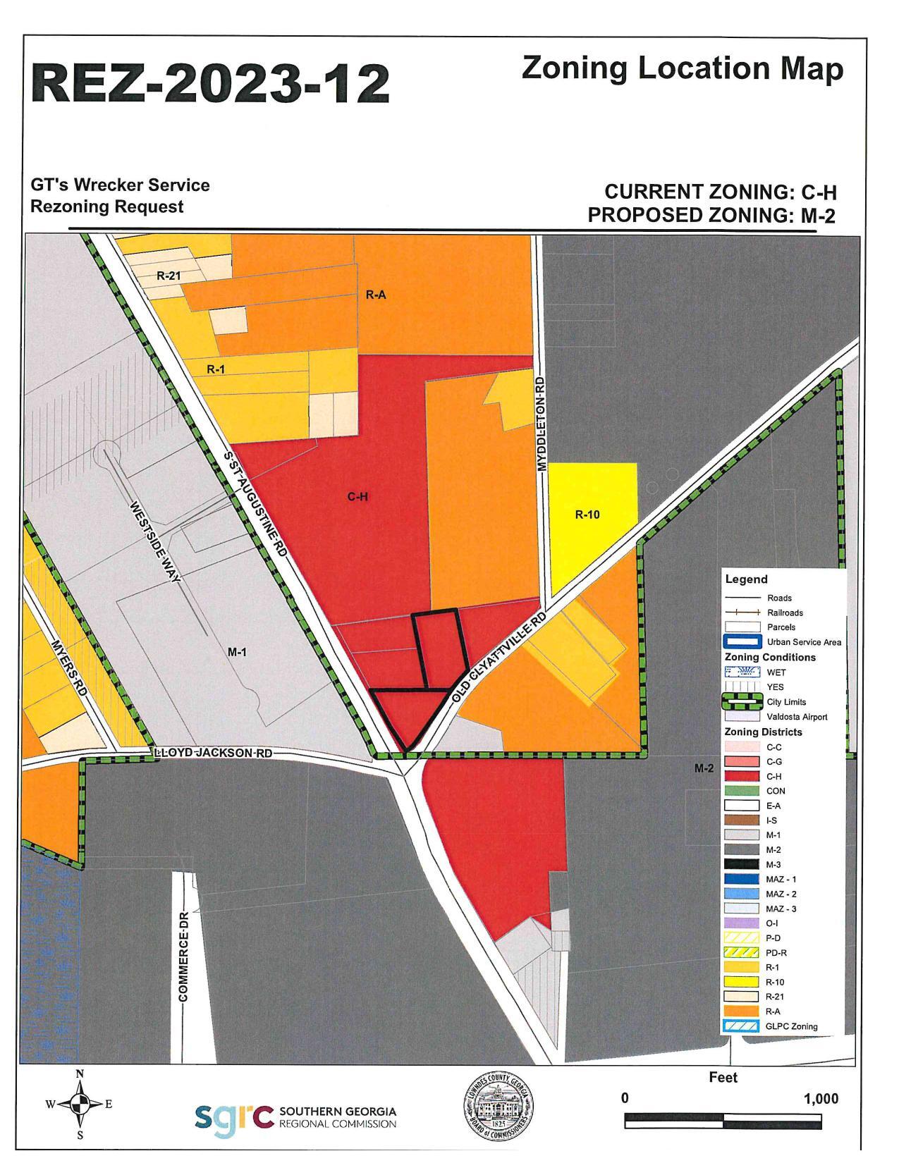
Zoning Location Map

REZ-2023-12 GT'S Wrecker Service, 1350 & 1326 Old Clyattville Rd, ~3.2ac, C-H to M-2, Well & Septic DATE OF MEETING: October 10, 2023 Work Session/Regular
Colquitt EMC, Conference Center, 2 rezonings, 2 water, HVAC, Solar, Controls @ LCC Packet
9 October 2023

 
Zoning Location Map
smaller PDF