Lowndes Area Knowledge Exchange (LAKE)
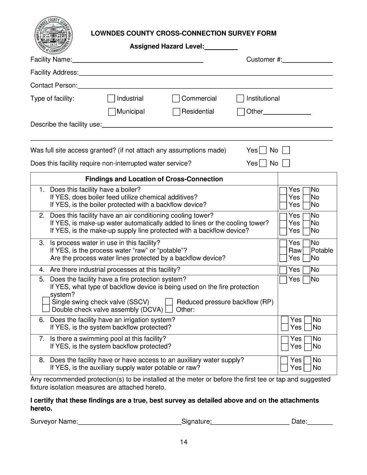
LOWNDES COUNTY CROSS-CONNECTION SURVEY FORM
Cross Connection Control Plan
Packet: VLDA appointment, VAWA Grant, Cross Connection Control Plan, Jail Addition, Code Red, 911 addition @ LCC
13 November 2023
smaller
PDF
Photographs
by
Lowndes Area Knowledge Exchange (LAKE)
,
licensed by a
Creative Commons Attribution-Share Alike 3.0 U.S. License
.
Lowndes Area Knowledge Exchange (LAKE)