Lowndes Area Knowledge Exchange (LAKE)
Conceptual Site Plan
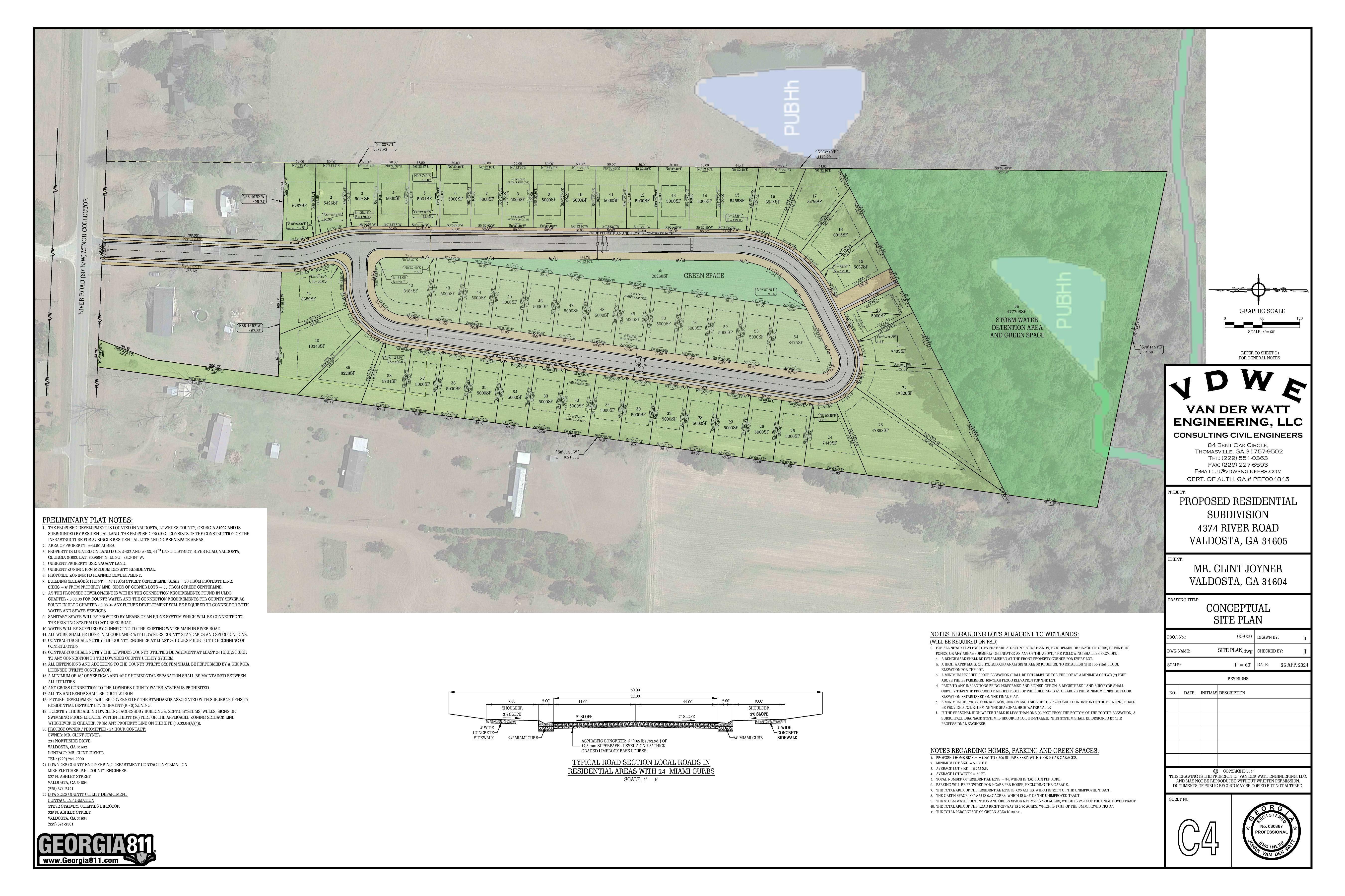
REZ-2024-08 River Road, 4374 River Road, ~15ac, R-21 to P- D, County Utilities Work/Regular
Packet: Hospital Authority appointment, 6 rezonings, paving and resurfacing, subdivision infrastructure, probationers @ LCC
13 May 2024
smaller
PDF
Photographs
by
Lowndes Area Knowledge Exchange (LAKE)
,
licensed by a
Creative Commons Attribution-Share Alike 3.0 U.S. License
.
Lowndes Area Knowledge Exchange (LAKE)