Lowndes Area Knowledge Exchange (LAKE)

[prev][index][next] [index to photographs]

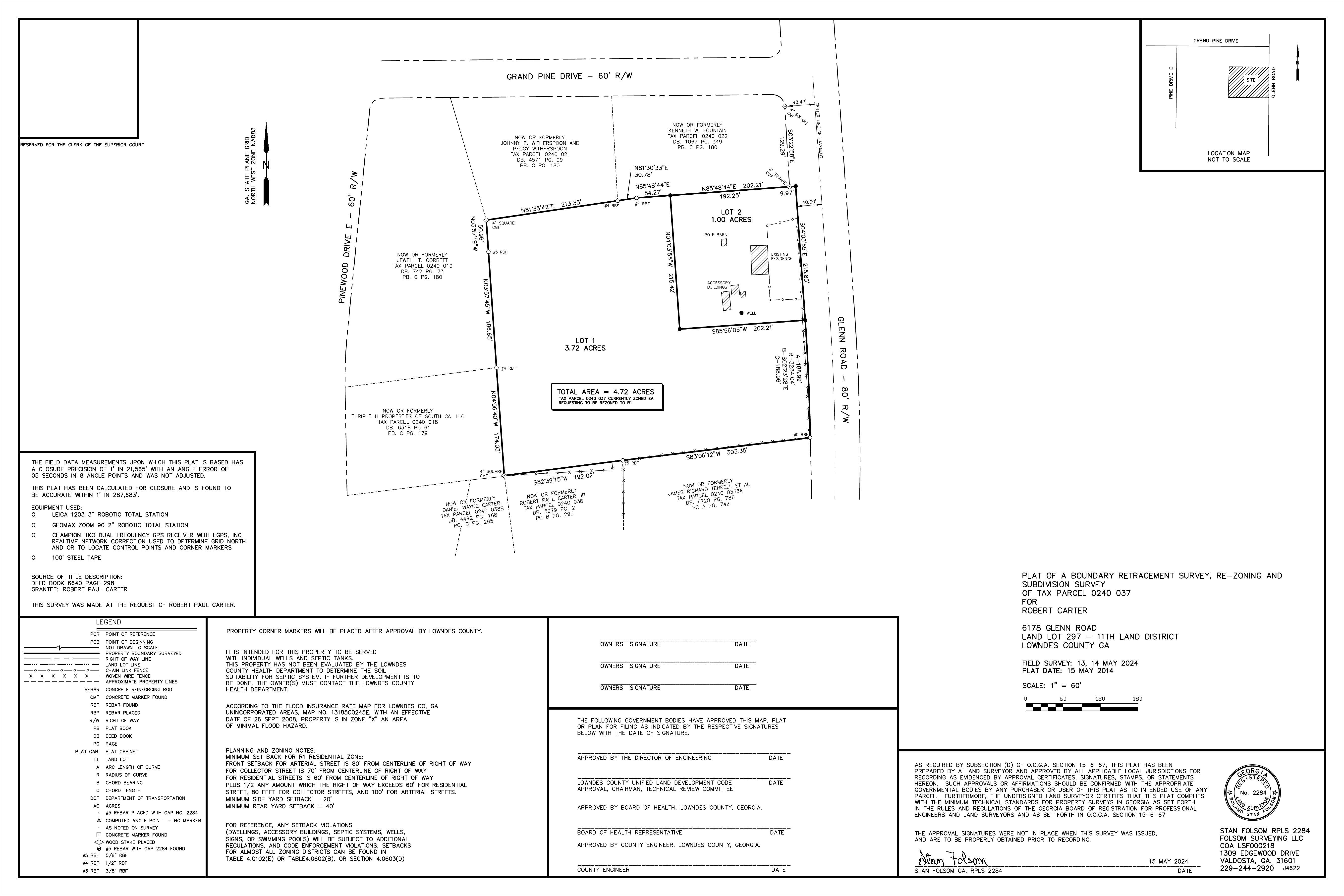
PLAT OF A BOUNDARY RETRACEMENT SURVEY, RE—ZONING AND SUBDIVISION SURVEY ... ROBERT PAUL CARTER.

REZ-2024-13 Carter, 6128 Glenn Road, ~4.72ac, E-A to R-1, Well and Septic
Packet: Rezoning on Glenn Road, Abandon part of Valencia Street, pave Kinderlou Clyattville Road @ LCC
10 June 2024

 
PLAT OF A BOUNDARY RETRACEMENT SURVEY, RE—ZONING AND SUBDIVISION SURVEY ... ROBERT PAUL CARTER.
smaller PDF