Lowndes Area Knowledge Exchange (LAKE)

[prev][index][next] [index to photographs]

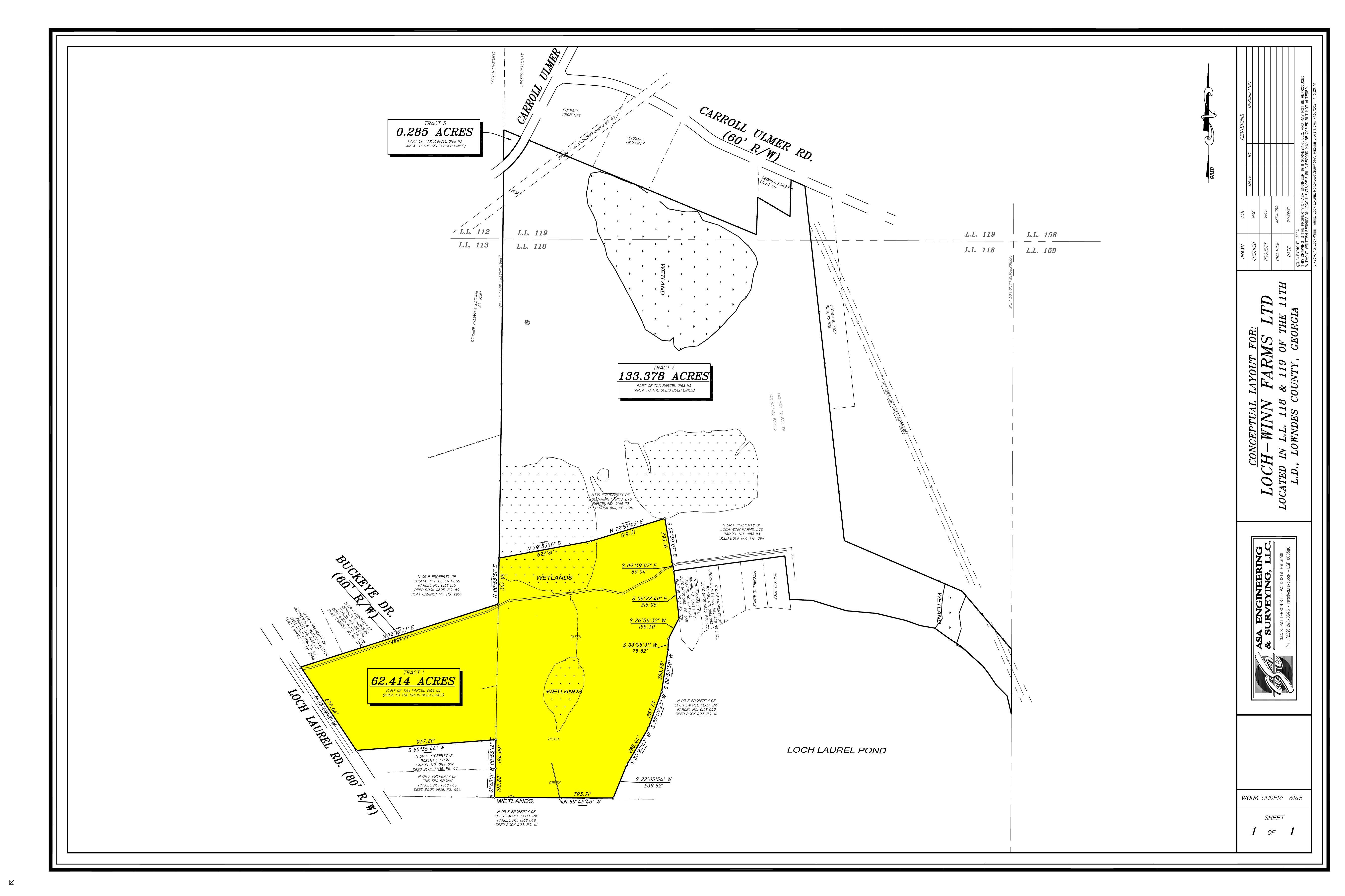
Survey Plat

REZ-2024-15 Loch Winn Farms, LTD, ~62ac, Loch Laurel & Carroll Ulmer, R-A to R-1 & R-A, Well and Septic
Agenda: ULDC text amendments, Loch Winn LTD rezoning, adoption of millage rates, USGS stream gauges, sprayfield expansion, watermain interconnection @ LCC
14 October 2024

 
Survey Plat
smaller PDF