Lowndes Area Knowledge Exchange (LAKE)
estimated number of units (eg., 1 hour of therapy).
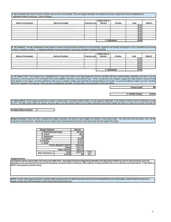
Approval of the Solicitor General’s FY2025 VAWA Continuance Grant Application
Packet: Tax Assessor and Land Bank appointments, Assessment rate, VAWA, alcohol @ LCC
27 January 2025
bigger
PDF
Photographs
by
Lowndes Area Knowledge Exchange (LAKE)
,
licensed by a
Creative Commons Attribution-Share Alike 3.0 U.S. License
.
Lowndes Area Knowledge Exchange (LAKE)