Lowndes Area Knowledge Exchange (LAKE)
Site Plan
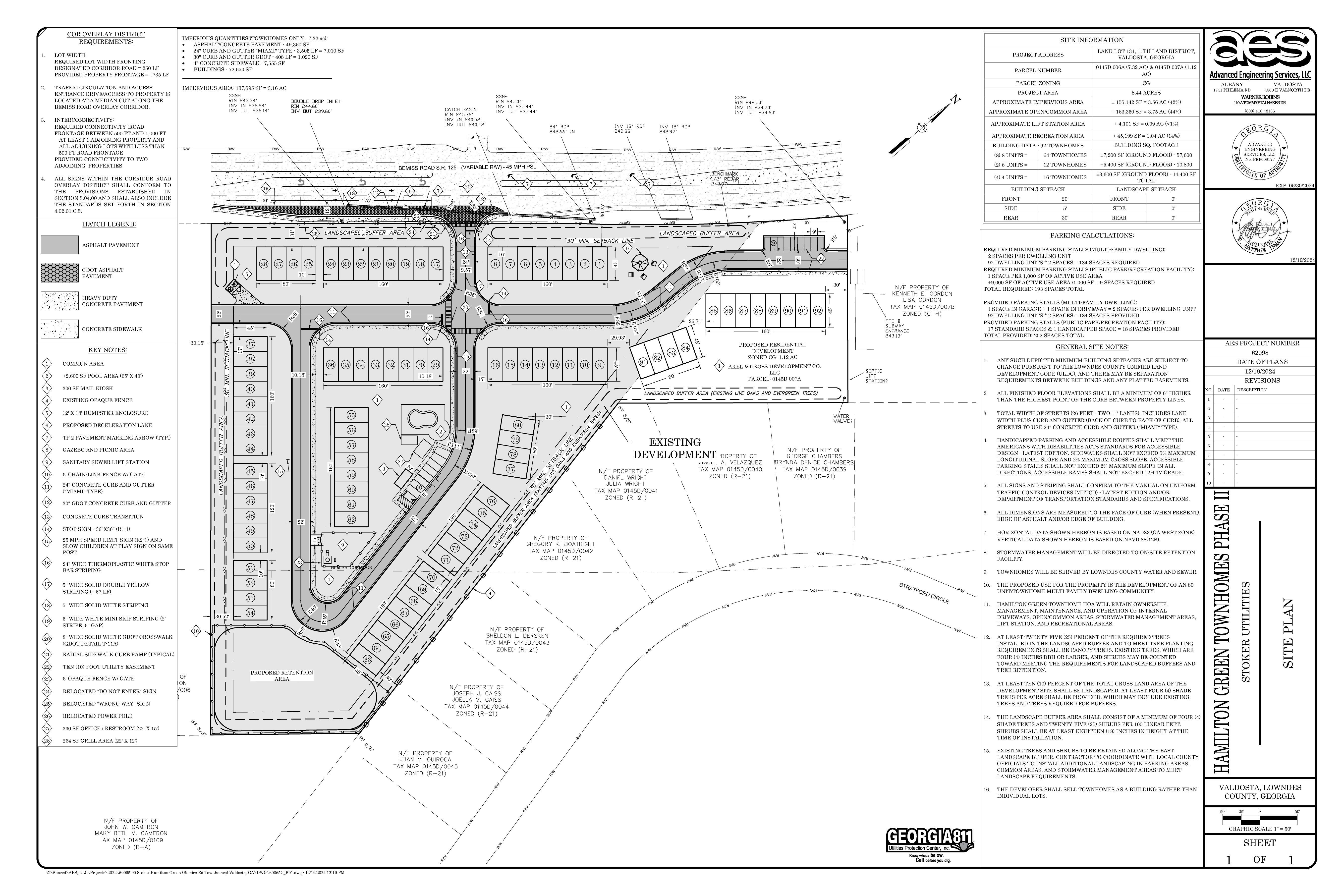
5.b. REZ-2025-02 Hamilton Green Ph. 2, 4618 Bemiss Rd, 1.12ac, C-G to P-D, County Utilities, C-G to P-D
Four rezonings, mobile home decals, Lift Station Pump, Tax Refunds @ LCC
10 February 2025
smaller
PDF
Photographs
by
Lowndes Area Knowledge Exchange (LAKE)
,
licensed by a
Creative Commons Attribution-Share Alike 3.0 U.S. License
.
Lowndes Area Knowledge Exchange (LAKE)