Lowndes Area Knowledge Exchange (LAKE)
Zoning Location Map
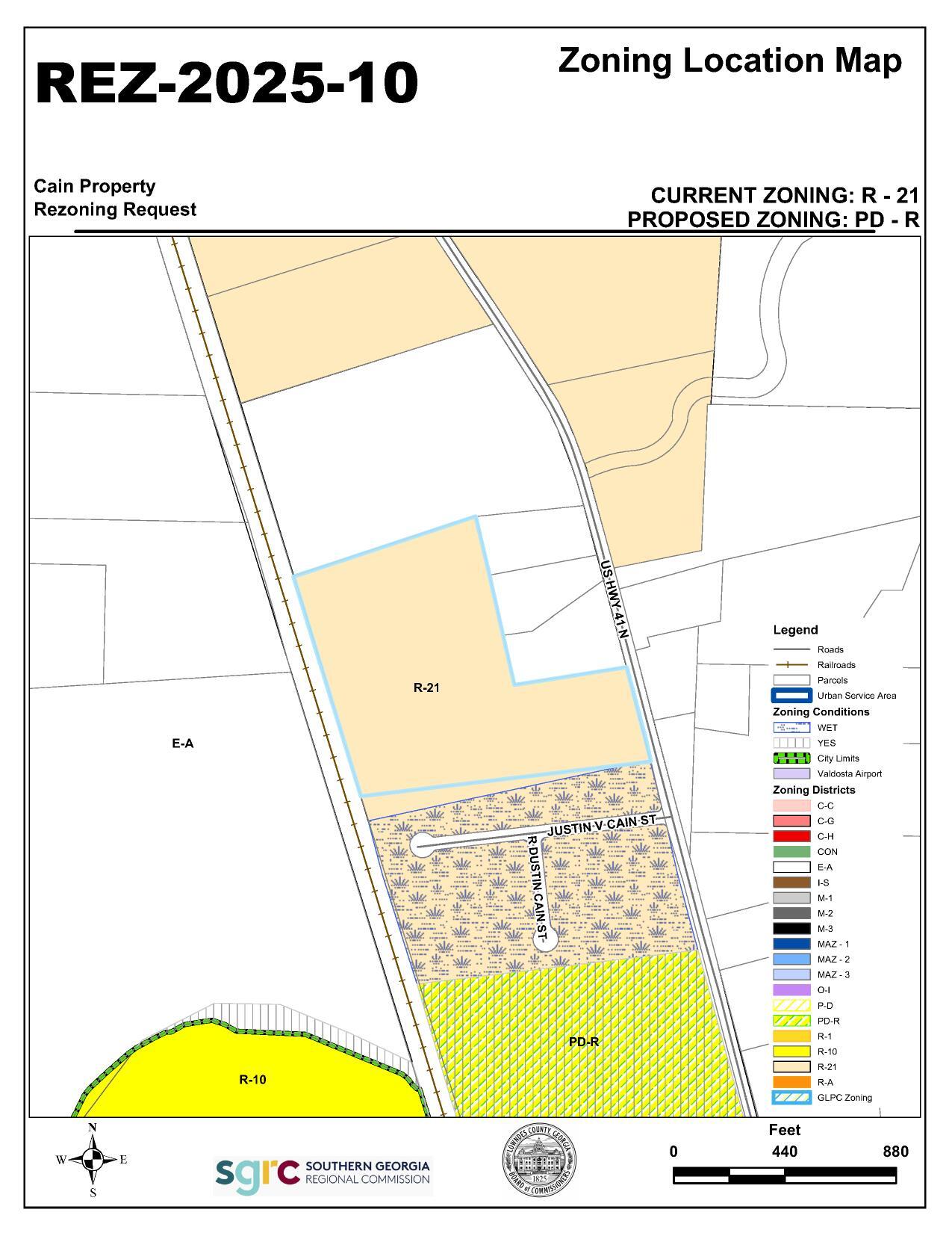
REZ-2025-10 Cain Property, 6261 US HWY 41 N, ~21ac, R-21 to PD-R, Well & Septic
Two rezonings and a beer and wine license @ LCC Packet
7 July 2025
smaller
PDF
Photographs
by
Lowndes Area Knowledge Exchange (LAKE)
,
licensed by a
Creative Commons Attribution-Share Alike 3.0 U.S. License
.
Lowndes Area Knowledge Exchange (LAKE)