Lowndes Area Knowledge Exchange (LAKE)
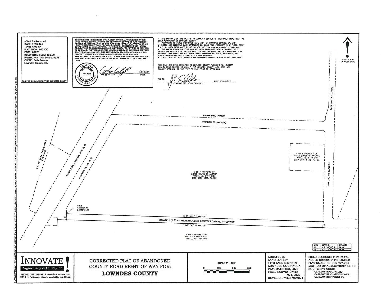
CORRECTED PLAT OF ABANDONED COUNTY ROAD RIGHT OF WAY FOR: LOWNDES COUNTY
Quit-Claim Deed of Abandoned Section of Hightower Road
Packet: Millages, Opioid Litigation, Hightower Road, SPLOST IX, TREES Act, PFAS Groundwater Claims @ LCC
25 August 2025
smaller
PDF
Photographs
by
Lowndes Area Knowledge Exchange (LAKE)
,
licensed by a
Creative Commons Attribution-Share Alike 3.0 U.S. License
.
Lowndes Area Knowledge Exchange (LAKE)