Lowndes Area Knowledge Exchange (LAKE)
Page 288
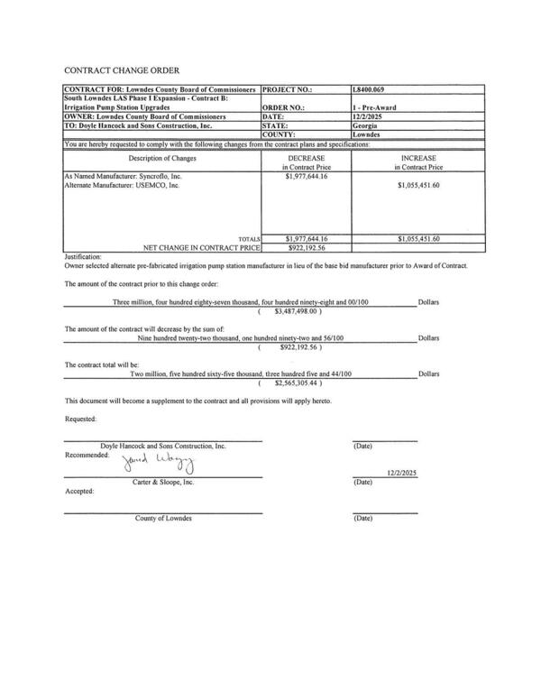
LAS Pump Station Upgrade
Packet: 4 Presentations, 4 Appointments, 2 Rezonings, 1 Dec. Lighting, 16 For Consideration, 1 Pump Station Upgrade @ LCC
8 December 2025
bigger
PDF
Photographs
by
Lowndes Area Knowledge Exchange (LAKE)
,
licensed by a
Creative Commons Attribution-Share Alike 3.0 U.S. License
.
Lowndes Area Knowledge Exchange (LAKE)