[prev][next] [index to photographs]

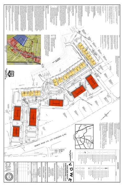
08.13.12 Site Plan - FINAL LCBOC APPROVED

1 - 5
Email and attachments about REZ-2013-09
2 July 2013
John S. Quarterman jsq at quarterman.org
 
08.13.12 Site Plan - FINAL LCBOC APPROVED
bigger

Last changed: $Date: 2013/08/09 20:52:40 $