[prev][index][next] [index to photographs]

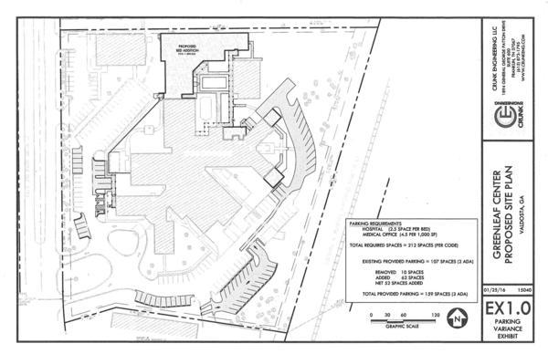
Greenleaf Center Proposed Site Plan

1-1
APP-2016-01, Crunk Engineering for Greenleaf Hospital, Valdosta, GA
1 March 2016
City of Valdosta jsq at quarterman.org
 
Greenleaf Center Proposed Site Plan
bigger

Last changed: $Date: 2016/03/01 18:22:03 $