Lowndes Area Knowledge Exchange (LAKE)
Required Approvals
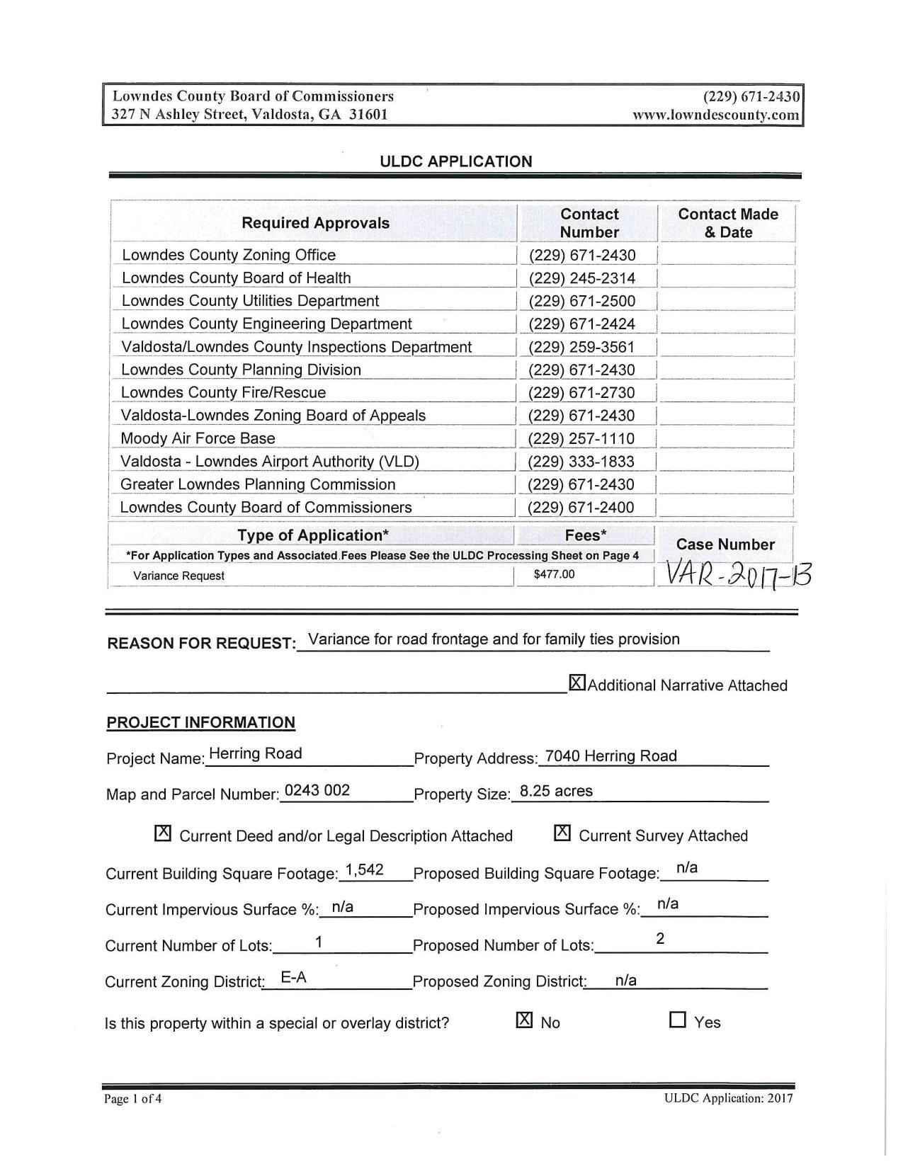
VAR-2017-13 Herring
ZBOA Packet
3 October 2017
smaller
PDF
Photographs
by
Lowndes Area Knowledge Exchange (LAKE)
,
licensed by a
Creative Commons Attribution-Share Alike 3.0 U.S. License
.
Lowndes Area Knowledge Exchange (LAKE)