Lowndes Area Knowledge Exchange (LAKE)
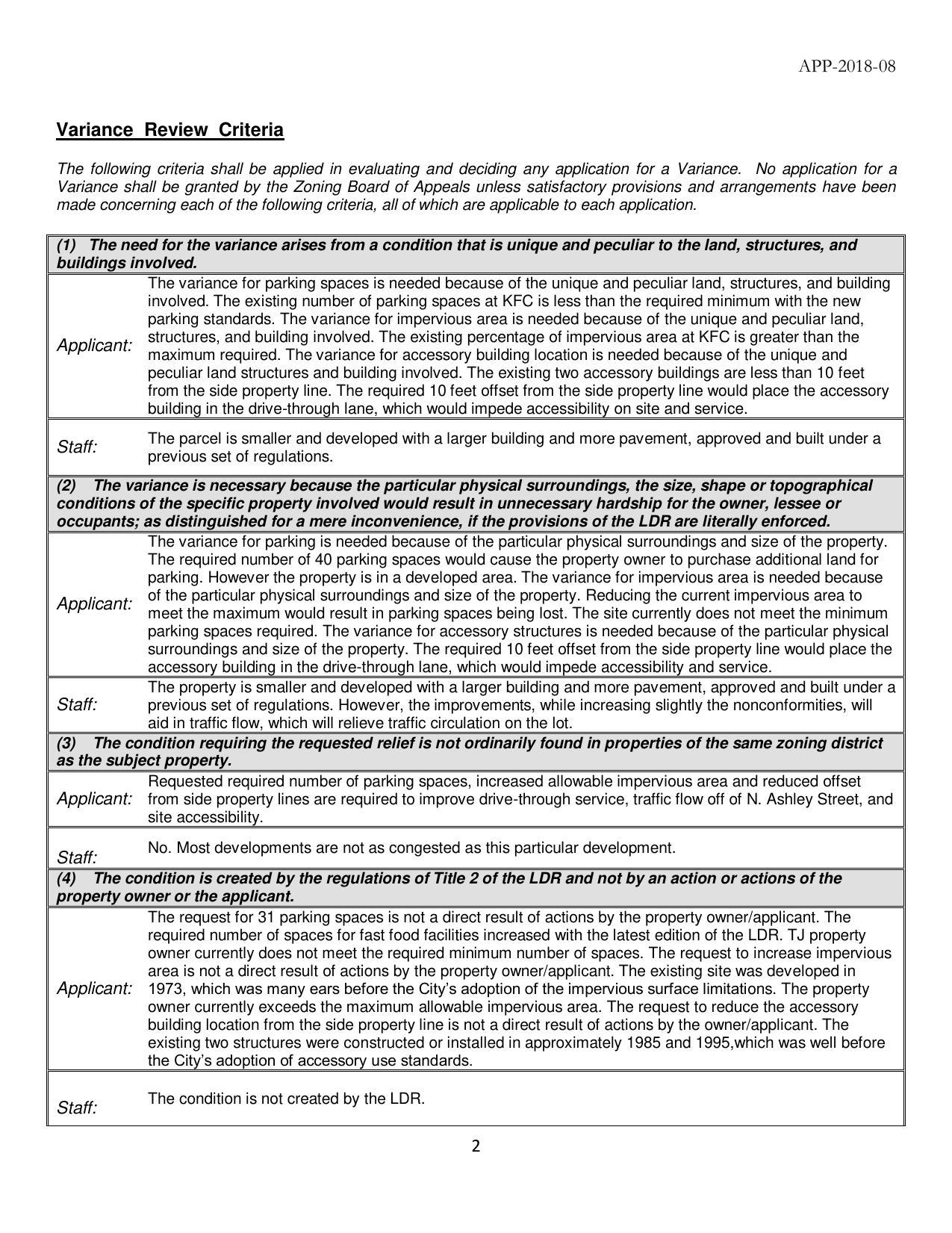
Variance Review Criteria
APP-2018-08 Tim Harris (KFC)
ZBOA Packet
4 December 2018
smaller
PDF
Photographs
by
Lowndes Area Knowledge Exchange (LAKE)
,
licensed by a
Creative Commons Attribution-Share Alike 3.0 U.S. License
.
Lowndes Area Knowledge Exchange (LAKE)