Lowndes Area Knowledge Exchange (LAKE)
Required Approvals
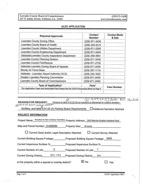
VAR-2019-04 Knudson Son Outdoor Activities
One county case: Knudson & Son Outdoor Activities @ ZBOA
4 June 2019
bigger
PDF
Photographs
by
Lowndes Area Knowledge Exchange (LAKE)
,
licensed by a
Creative Commons Attribution-Share Alike 3.0 U.S. License
.
Lowndes Area Knowledge Exchange (LAKE)