Lowndes Area Knowledge Exchange (LAKE)
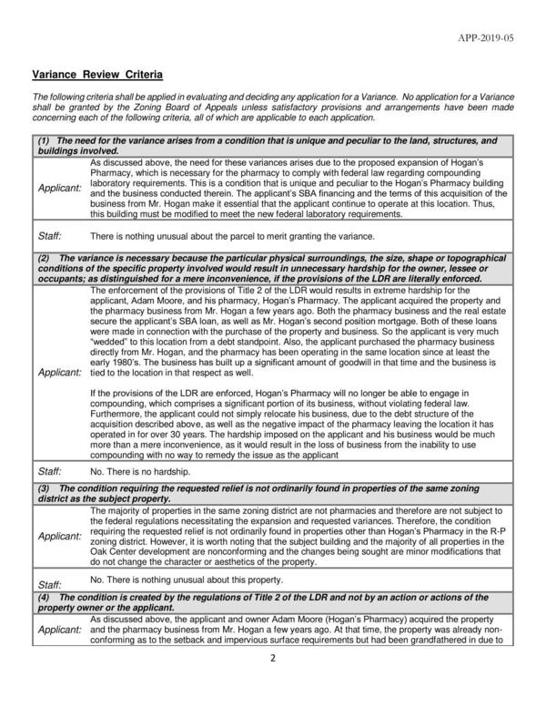
Variance Review Criteria
APP-2019-05 packet
Board Packet @ ZBOA
2 July 2019
bigger
PDF
Photographs
by
Lowndes Area Knowledge Exchange (LAKE)
,
licensed by a
Creative Commons Attribution-Share Alike 3.0 U.S. License
.
Lowndes Area Knowledge Exchange (LAKE)