Lowndes Area Knowledge Exchange (LAKE)
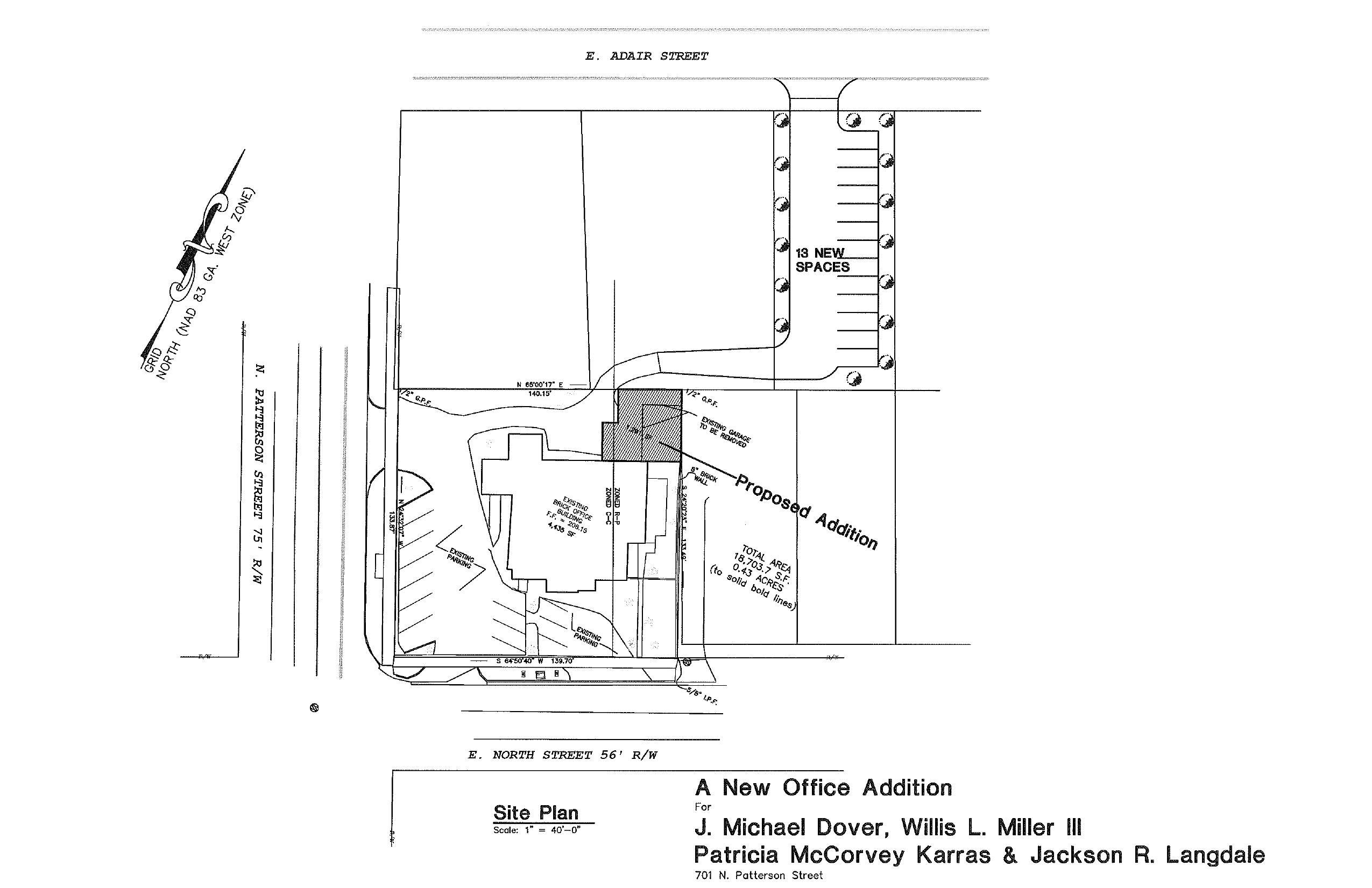
Parking Site Plan
APP-2020-03 parking
QuickTrip signs and law office parking @ ZBOA
3 March 2020
smaller
PDF
Photographs
by
Lowndes Area Knowledge Exchange (LAKE)
,
licensed by a
Creative Commons Attribution-Share Alike 3.0 U.S. License
.
Lowndes Area Knowledge Exchange (LAKE)