[prev][index][next]

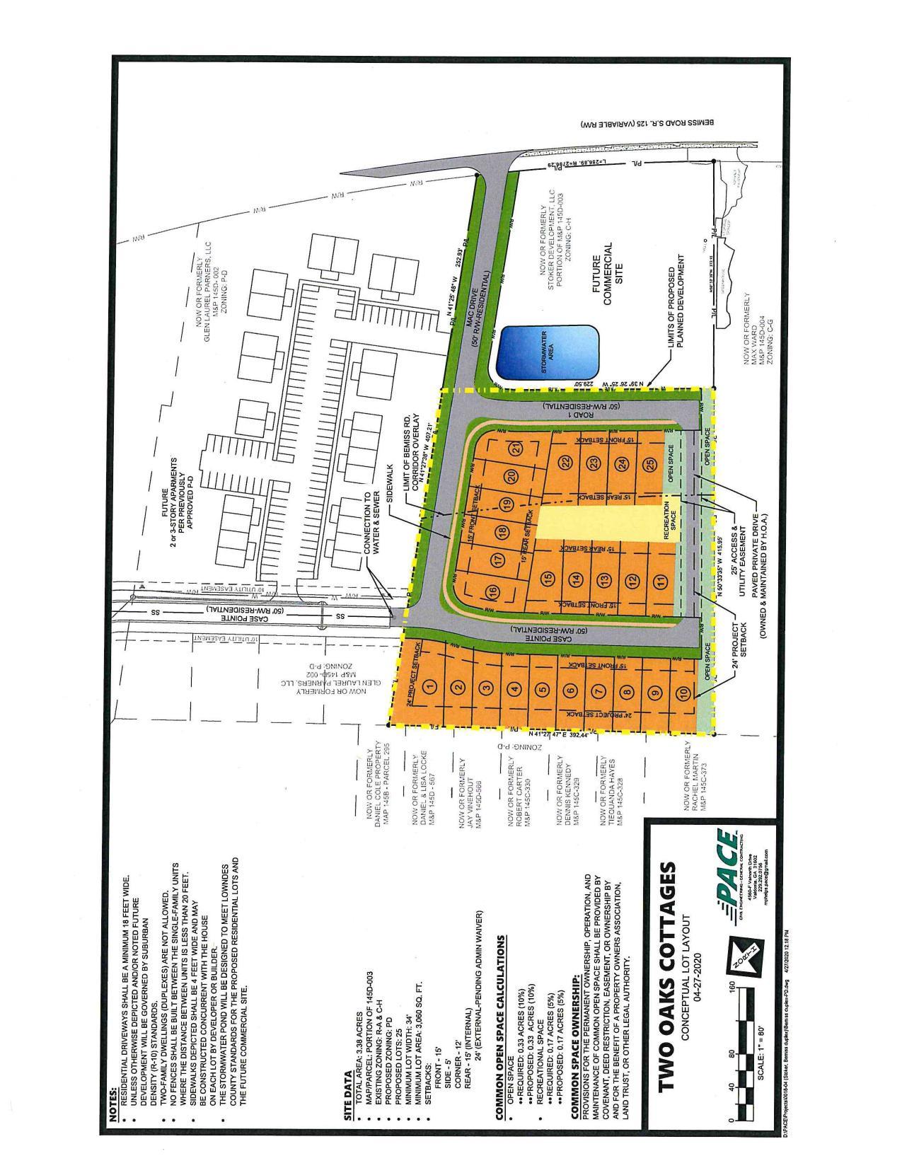
Map: Conceptual Lot Layout

REZ-2020-04 Two Oaks Cottages
2 Appointments, 2 Rezonings, Lift Station, Drainage, Facilities @ LCC
9 June 2020
 
Map: Conceptual Lot Layout
smaller PDF