Lowndes Area Knowledge Exchange (LAKE)
Survey Plat
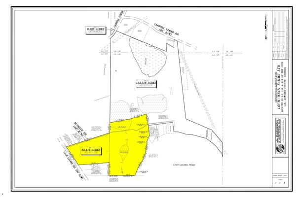
REZ-2024-15 Loch Winn Farms, LTD, ~62ac, Loch Laurel & Carroll Ulmer, R-A to R-1 & R-A, Well and Septic
Packet: Rezonings Loch Laurel Road subdivision & Pine Grove Road townhouses; TIA Orr Road Extension @ LCC
9 September 2024
bigger
PDF
Photographs
by
Lowndes Area Knowledge Exchange (LAKE)
,
licensed by a
Creative Commons Attribution-Share Alike 3.0 U.S. License
.
Lowndes Area Knowledge Exchange (LAKE)